📍
施工対応エリアについて
当店の施工サービスは、山梨県全域および
諏訪エリア(諏訪市・岡谷市・茅野市・諏訪郡)を対象としております。
上記エリア外のお客様には、商品のみのご購入が可能でございます。
ご不明な点がございましたら、お気軽にお問い合わせください。
工事費込み価格
¥293,150
(税込)~
製品情報
見積シミュレーション
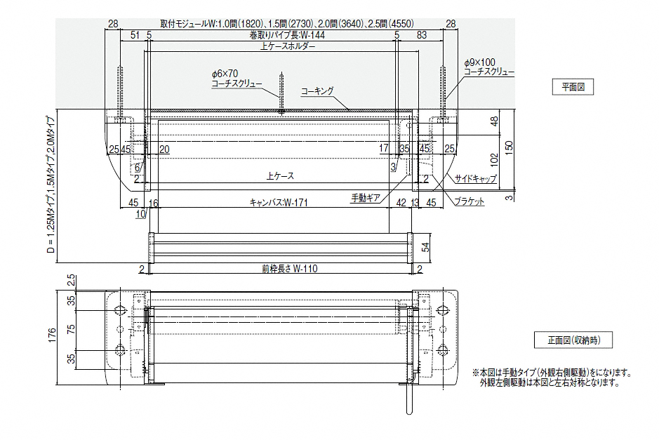
カラー: シャイングレー
幅: 間口:182cm
奥行き: 出幅:125cm
素材: ポリエステル
商品の取り付け工事を希望されますか?
「商品購入のみ」の場合、商品加工や設置・撤去作業はご依頼いただけません。
現在のお見積り額
395000円








